Ontdek deze exclusieve nieuwbouw villa in de gewilde wijk van Benissa
Deze prachtige, nieuw te bouwen villa in Ibiza-stijl is een zeldzaam off-plan project in een van de meest gewilde buurten van Benissa, Costa Blanca. Gelegen op een royaal perceel van 1.129 m² en met een indrukwekkende bebouwde oppervlakte van 374 m², combineert deze villa moderne mediterrane architectuur met luxe, privacy en comfort.
Een harmonieuze leefruimte
De villa is ontworpen met open, lichte ruimtes en grote raampartijen die de spectaculaire panoramische uitzichten maximaal benutten. Hoogwaardige materialen en een verfijnde afwerking geven de woning een tijdloze en elegante uitstraling.
Belangrijkste kenmerken:
- Off-plan project (bestaande woning wordt volledig gesloopt)
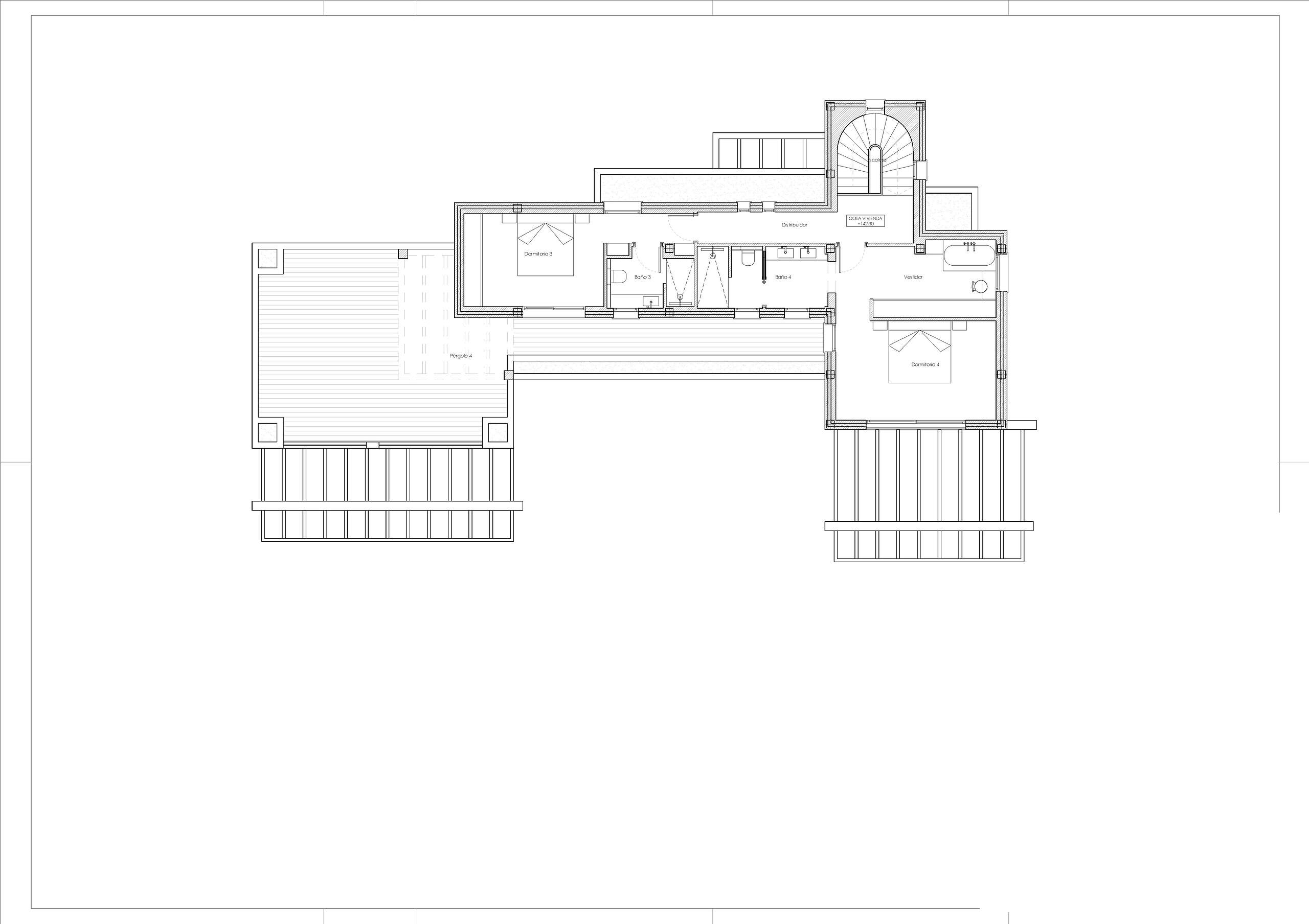
- 4 ruime slaapkamers, elk met en suite badkamers
- Extra gastentoilet
- Perceeloppervlakte: 1.129 m²
- Bebouwde oppervlakte: 374 m²
- Adembenemend panoramisch uitzicht
- Gesloten garage en buitenparkeerplaatsen inbegrepen
- Kelderverdieping met garage, fitnessruimte, privébioscoop, apart toilet en wasruimte
- Vloerverwarming in de gehele woning
- Geïsoleerd airconditioningsysteem
- Hoogwaardig Technal-schrijnwerk
Comfort en functionaliteit
Kelderverdieping: Ontspanning en Luxe
De kelderverdieping biedt een luxueuze en praktische indeling, gericht op comfort en ontspanning. Hier vindt u:
- Een ruime gesloten garage
- Een moderne fitnessruimte
- Een exclusieve privé thuisbioscoop
- Een apart gastentoilet
- Een aparte wasruimte
Deze verdieping biedt de perfecte balans tussen ontspanning en dagelijkse functionaliteit.
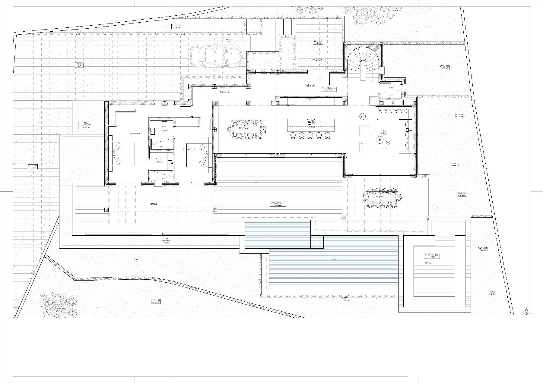
Eerste verdieping: Het hart van de villa
Via een elegante trap bereikt u de eerste verdieping, waar het echte leven zich afspeelt. Deze verdieping beschikt over:
- Een royale, lichte woonkamer met grote raampartijen en directe toegang tot de terrassen
- Een moderne open woonkeuken die naadloos aansluit op de leefruimte, perfect voor dagelijks gebruik en sociale bijeenkomsten
- Een aparte, stijlvolle zitkamer voor extra comfort en privacy
- Twee ruime slaapkamers, elk met een luxe en suite badkamer
Vanuit de woonruimtes is er een naadloze overgang naar de buitenruimtes, het zwembad en de zonneterrassen.
Bovenste verdieping: Exclusieve privacy
De bovenste verdieping is volledig gericht op rust en privacy. Hier bevinden zich nog twee luxe slaapkamers, beide met en suite badkamers. De master suite is een ware blikvanger, uitgerust met een elegante inloopkast en een luxueuze badkamer. Vanuit de master bedroom heeft u directe toegang tot een privéterras met adembenemend uitzicht.
Mediterrane perfectie
De villa is omringd door prachtig aangelegde tuinen en ruime terrassen die uitnodigen tot ontspanning. Het privézwembad vormt het centrale punt van de buitenruimte, waar u in alle rust kunt genieten van het mediterrane klimaat en de panoramische uitzichten.Wonen in Benissa: Luxe en Natuur in Perfecte Harmonie
Benissa staat bekend om zijn adembenemende natuur, indrukwekkende kustlijn en exclusieve woonomgeving. Met idyllische baaien, schilderachtige wandelpaden en uitstekende restaurants biedt Benissa een unieke levensstijl waarin rust, natuur en luxe samenkomen. Deze villa biedt de perfecte combinatie van privacy en nabijheid van alle voorzieningen.
Wil je de magie van dit project zelf komen ervaren? Dan dan contact met ons op.
Ons Nederlandstalige team staat klaar om al je vragen te beantwoorden!
Nieuwste aanbod huizen
De voordelen van kopen met Horizon Estates
Nederlandse begeleiding
Een vertrouwd aanspreekpunt die u begrijpt en voor u klaarstaat, in uw eigen taal.
Lokale marktkennis
Een betrokken aanpak waarin uw wensen centraal staan.
Persoonlijke service
Een betrokken aanpak waarin uw wensen centraal staan.
Geen zorgen over wetgeving
Noa zorgt ervoor dat alles volgens de Spaanse wetgeving verloopt, zodat u veilig en zorgeloos kunt kopen.
Compleet netwerk
Toegang tot een breed netwerk van experts, van juridische adviseurs tot hypotheekverstrekkers.

Klaar om uw Spaanse droom waar te maken?
Neem vandaag nog contact op met Noa van der Burgh en ontdek hoe zij u kan helpen om uw droomhuis in Moraira te vinden. Met haar ervaring, persoonlijke begeleiding en toewijding maakt Noa het kopen van uw (tweede) woning in Spanje een zorgeloos avontuur.