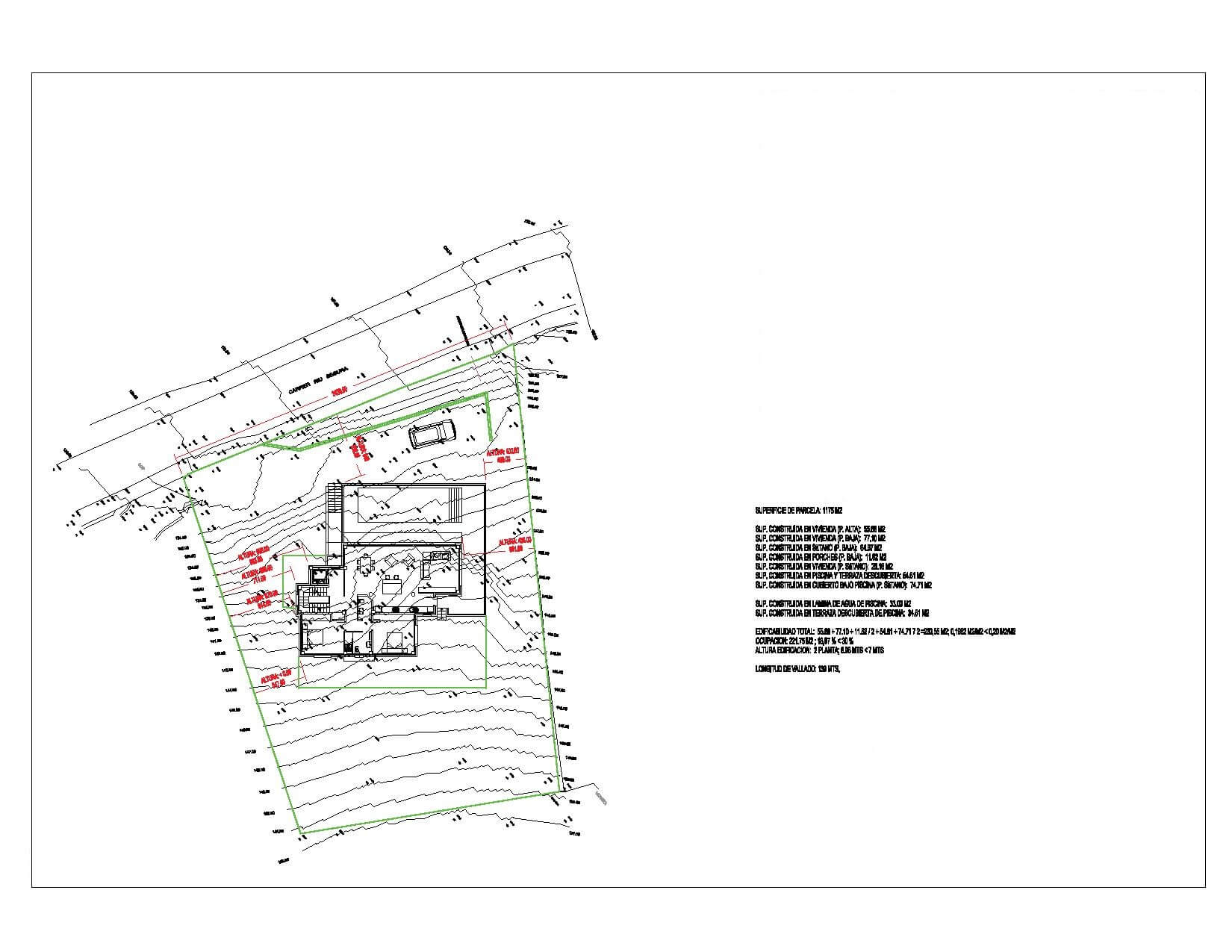
Stap binnen in deze moderne Ibiza-stijl villa in Pedreguer, waar het Mediterrane leven tot leven komt. Gelegen op een riante kavel van 1.175 m² met een woonoppervlakte van 235 m², biedt deze villa adembenemende uitzichten en het unieke voorrecht om zowel zonsopgangen als zonsondergangen vanaf uw privéterras te ervaren.
Geniet van modern mediterraan leven
Deze villa is ontworpen voor ultiem comfort en verbinding met de natuur. De lichte, ruime woonruimte met grote ramen laat de schoonheid van het landschap binnenstromen. De moderne keuken gaat naadloos over in de open eet- en leefruimte, waardoor een harmonieuze verbinding tussen binnen en buiten ontstaat.
Met een prachtig 33 m² zwembad en een 40 m² terras is dit de perfecte plek om te ontspannen en te genieten van het rustige leven in het binnenland van de Costa Blanca. Hier voelt u zich echt één met de natuur.
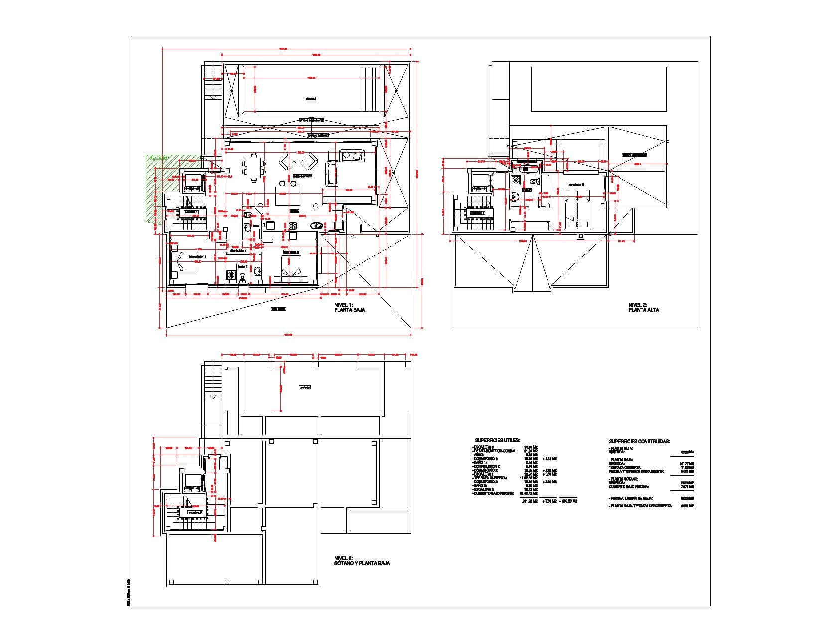
Indeling
- Bovenverdieping: Hoofdslaapkamer met en-suite badkamer en panoramisch uitzicht.
- Benedenverdieping: Twee ruime slaapkamers, elk met een eigen badkamer.
- Heldere open leefruimte met moderne keuken en eetruimte.
- Praktische wasruimte en technische ruimte.
Optionele extra's om de villa aan te passen aan uw levensstijl:
- Ondergrondse garage onder het zwembad (tegen meerprijs).
- Lift die beide verdiepingen verbindt (optioneel).
- Vloerverwarming (optionele upgrade).
Locatie & levensstijl
Gelegen in de rustige heuvels nabij Pedreguer, biedt deze woning de perfecte combinatie van rust en gemak. Geniet van de authentieke Spaanse sfeer in de stad met wekelijkse markten en lokale restaurants.
Slechts een korte rit brengt u naar de gouden stranden van Dénia, Jávea en Moraira — ideaal voor wie op zoek is naar vrede en natuur, dicht bij de zee.
Omringd door bergen, wijngaarden en amandelboomgaarden, is dit gebied perfect voor wandelen, fietsen en het verkennen van de tijdloze schoonheid van de Costa Blanca.
Een bijzondere kans aan de Costa Blanca
Deze eigentijdse villa met Ibiza-sfeer biedt niet alleen adembenemend uitzicht, maar ook een unieke mix van modern design en natuurlijke rust. Bij Horizon Estates verbinden we mensen met huizen die hun levensstijl en dromen weerspiegelen.
Laat ons u begeleiden, vanaf uw eerste bezoek tot het moment dat u de sleutels in handen heeft. Neem vandaag nog contact met ons op voor meer informatie of om een privébezichtiging te regelen.
Je bent op weg naar de Horizon...
Nieuwste aanbod huizen
De voordelen van kopen met Horizon Estates
Nederlandse begeleiding
Een vertrouwd aanspreekpunt die u begrijpt en voor u klaarstaat, in uw eigen taal.
Lokale marktkennis
Een betrokken aanpak waarin uw wensen centraal staan.
Persoonlijke service
Een betrokken aanpak waarin uw wensen centraal staan.
Geen zorgen over wetgeving
Noa zorgt ervoor dat alles volgens de Spaanse wetgeving verloopt, zodat u veilig en zorgeloos kunt kopen.
Compleet netwerk
Toegang tot een breed netwerk van experts, van juridische adviseurs tot hypotheekverstrekkers.

Klaar om uw Spaanse droom waar te maken?
Neem vandaag nog contact op met Noa van der Burgh en ontdek hoe zij u kan helpen om uw droomhuis in Moraira te vinden. Met haar ervaring, persoonlijke begeleiding en toewijding maakt Noa het kopen van uw (tweede) woning in Spanje een zorgeloos avontuur.