Deze elegante woning met zuidwestelijke oriëntatie is geïnspireerd op de mediterrane en Ibiziaanse bouwstijl. De ronde vormen, zichtbare houten balken en gewelfde plafonds weerspiegelen de zachte lijnen van het omliggende landschap. Grote ramen met houten luiken en een dak met terracotta tegels zorgen voor een warme, lichte en uitnodigende sfeer.
Comfortabel wonen op één niveau
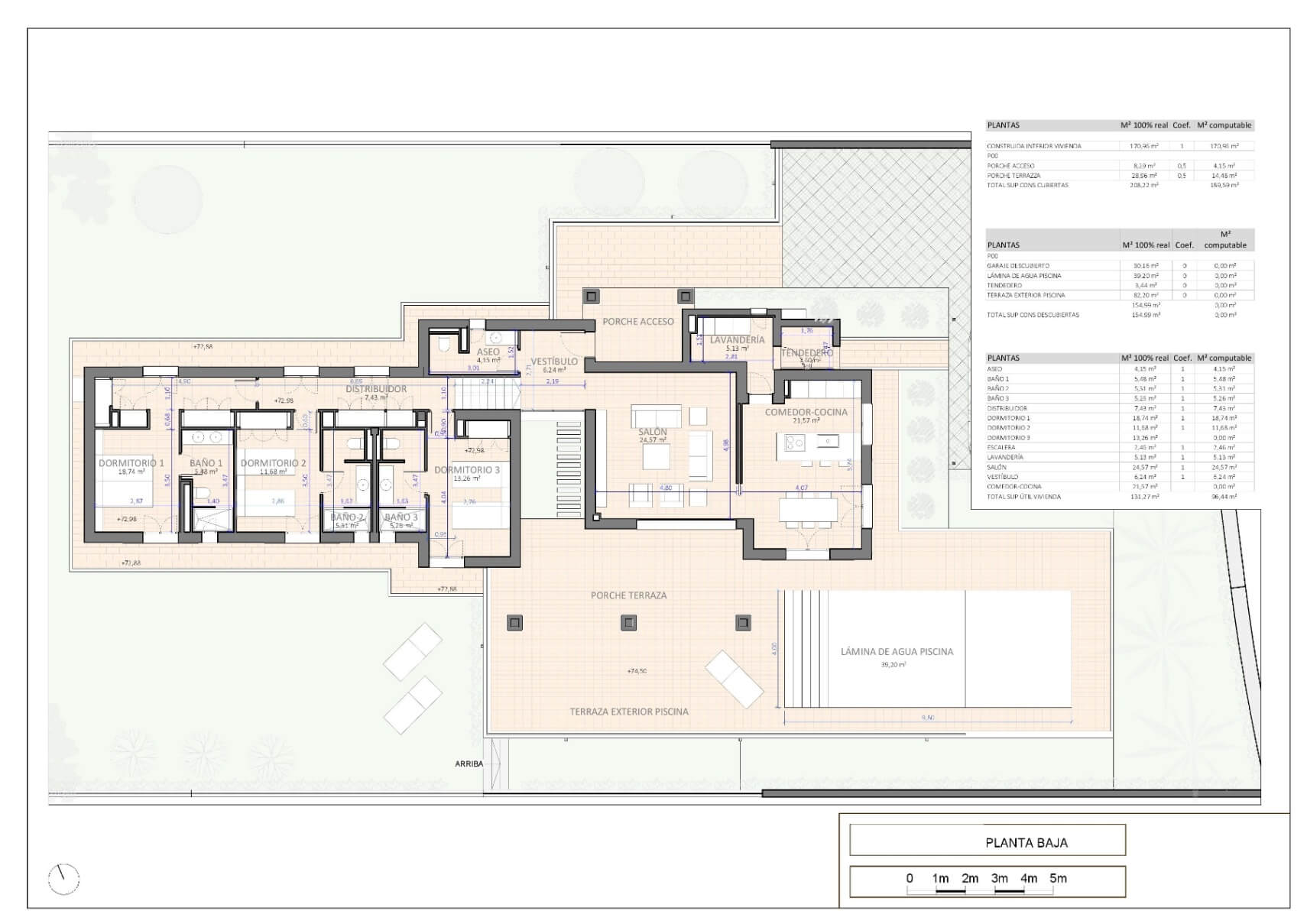
De woning is volledig gelijkvloers en biedt een ruime woon-eetkamer, een moderne open keuken, een bijkeuken, drie comfortabele slaapkamers met inbouwkasten, drie en suite badkamers en een apart gastentoilet.
Leven in de buitenlucht
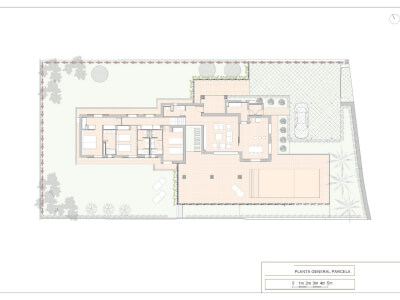
De buitenruimtes zijn ontworpen om te ontspannen en te genieten. Een mediterrane tuin, een zwembad met turquoise water en ruime zonneterrassen maken dit huis perfect voor lange dagen in het milde klimaat van Jávea. Onder de pergola is er parkeergelegenheid voor twee auto’s.
Moderne technologie en natuurlijke materialen
Voorzien van airconditioning, wifi, video-intercom en een domoticasysteem voor de verlichting. Authentieke details zoals handgesneden natuursteen en houten balken versterken het karakter van de woning en geven het een luxueuze uitstraling.
Een combinatie van rust, stijl en kwaliteit
Deze villa is een perfecte keuze voor wie op zoek is naar comfort, esthetiek en mediterrane levensstijl, op slechts enkele minuten van het centrum en de stranden van Jávea.
Onze expertise in luxe onroerend goed aan de Costa Blanca stelt ons in staat om u woningen aan te bieden die de hoogste normen van kwaliteit en design overtreffen. Kies voor Horizon Estates en ervaar de mediterrane levensstijl zoals nooit tevoren. Uw droomhuis wacht op u in het prachtige Javea.
Nieuwste aanbod huizen
De voordelen van kopen met Horizon Estates
Nederlandse begeleiding
Een vertrouwd aanspreekpunt die u begrijpt en voor u klaarstaat, in uw eigen taal.
Lokale marktkennis
Een betrokken aanpak waarin uw wensen centraal staan.
Persoonlijke service
Een betrokken aanpak waarin uw wensen centraal staan.
Geen zorgen over wetgeving
Noa zorgt ervoor dat alles volgens de Spaanse wetgeving verloopt, zodat u veilig en zorgeloos kunt kopen.
Compleet netwerk
Toegang tot een breed netwerk van experts, van juridische adviseurs tot hypotheekverstrekkers.


Klaar om uw Spaanse droom waar te maken?
Neem vandaag nog contact op met Noa van der Burgh en ontdek hoe zij u kan helpen om uw droomhuis in Moraira te vinden. Met haar ervaring, persoonlijke begeleiding en toewijding maakt Noa het kopen van uw (tweede) woning in Spanje een zorgeloos avontuur.